Page suivante
Page précédente
Lupé (42520)

Maison de village 7 pièce(s) 5 chambre(s) 255 m²

2
2
42 m²
130 000 €
Réf GDC-490

Exclusivité Immorêve

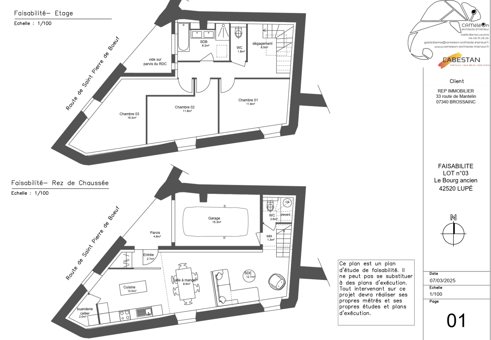
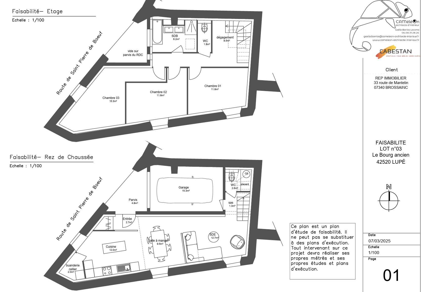
Rare sur le secteur, 2 voir 3 plateaux possibles , vendus viabilisés à aménager avec stationnements, caves et terrasse. 

Lot A : Un garage de 60 m2 potentiellement sur deux niveaux pour un total d'une centaine de m2 , possibilité de le laisser en annexe/garage ou de le transformer sous réserve d'autorisations d'urbanismes pour un changement de destination. 

Lot B : de type T4 bis offrant 126m² potentiellement habitables + terrasse de 10,5 m2, jardin d'hiver de 43 m2 + garage  de 43 m2 , terasse de 10,5 m2, caves de 75 m² avec puits, pleines de charme offrant de nombreuses possibilités d’usage (stockage, atelier, cave à vin…) ainsi que des volumes remarquables, idéal pour un projet sur mesure alliant charme et modernité.

Toiture amiantée sur le lot B.

Pour plus de renseignements, n'hésitez pas à m'appeler aux 06 67 49 17 93

Bilan énergétique

Diagnostics énergetiques
A propos de ce bien Caractéristiques de ce bien
  • Surface 255 m²
  • terrain 42 m²
  • séjour 60 m²
  • 5 chambre(s)
  • 2 salle(s) de bain
  • 2 salle(s) d'eau
  • 2 garage(s)
  • 1 côté(s) mitoyen(s)
  • 2 niveau(x)
  • terrasse

Financier

Informations financières
Prix de vente 130 000 € Les honoraires d'agence seront intégralement à la charge du vendeur

Simulation

Calcul des mensualités
* Champs obligatoires
IMMORÊVE Agence